Planning Request
無料の建築設計プランの作成サービス
すでにお土地や建築候補地が決まっているお客様向けに「理想のお家の設計プラン」を無料で作成を依頼できるサービスとなります。
デザイン性の高い注文住宅やリノベーションプランを作成してきた専門の設計士が担当いたします。
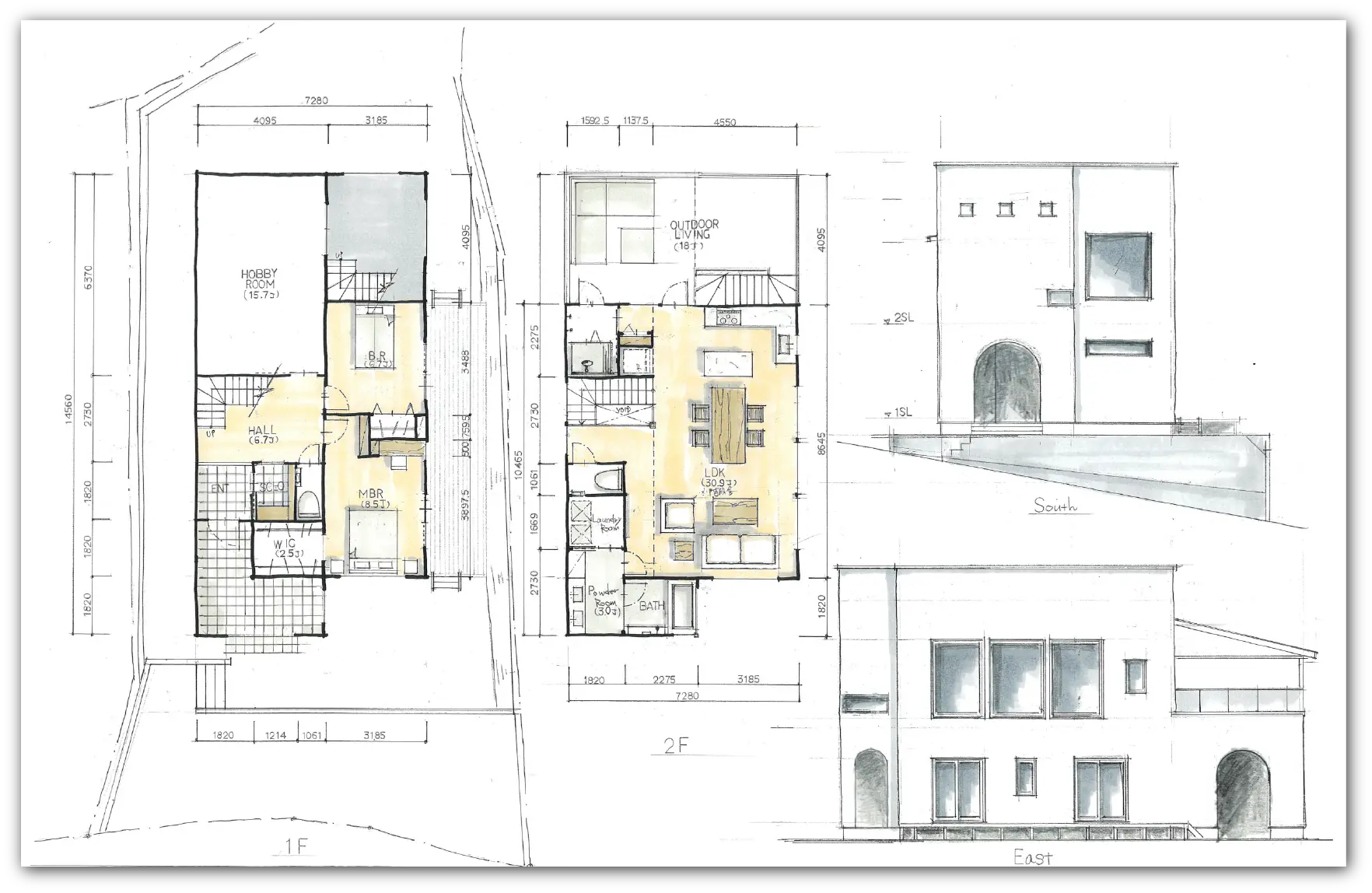
実際の設計プラン例
お客様のご要望に応じて、オリジナルの設計プランを作成しております。
※お客様専用のオリジナル設計プランとなるため、ご依頼の送信後に当社の設計担当者よりメールやお電話にて追加でお客様の詳細なご要望をヒアリングさせていただきます。
本サービスの流れ
- 1. 無料設計プラン作成ご依頼フォームから必要情報をお送りください。
- 2. 当社の経験豊富な設計士がプランを作成致します。(平均2週間前後)
- 3. 設計プラン一式のご提出(オンライン打合せでのプラン提出も可能です)
※原則として注文住宅または戸建てまたはマンションリノベーションを当社の対応エリア内で検討されているお施主様を対象としております。同業他社様からのご依頼および勉強目的でのご依頼はお断りしております。
